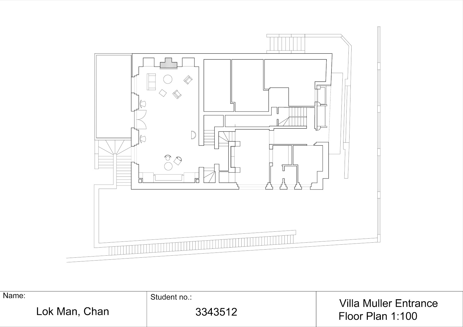
Villa Muller is an architecture that mainly focus on the interior structures. It is divided into 11 levels and 3 general floors in which each of the levels are separated of half the height of a normal floor (~1.5m). Adolf's idea on this house is how the detailed interior itself forms independently a core part of the house and the exterior walls as the "skin" i which it is less important compare to the insides. In such, the main theme for the insides is "CIRCULATION" and "PRIVACY". The building is separated by various different thin materialized walls to divide into zones which shows and guide the way that visitors to go through. Differences in floor height, internal material, size of room .etc. make each room varies to each other. Variation of each room doesn't hinder the interrelationship with each other. It is designed that rooms can be overseen to each other and build up connection among them. It also naturally illustrates the uses of each space and generally create a sense of "Journey" when travelling through the house.
Taking the advice from Anthony, the new drawings try to emphasis more on the important parts of Villa Muller with detail interiors to illustrate the integration between the important rooms e.g. living room, dinning room, ladies & gentlemen rooms...
Taking the advice from Anthony, the new drawings try to emphasis more on the important parts of Villa Muller with detail interiors to illustrate the integration between the important rooms e.g. living room, dinning room, ladies & gentlemen rooms...
Improved drawings done after studio (mainly adjusted the hierarchy of line weights and got rid of the text boxes below each drawings)
Original drawings for Week 3
Original drawings for Week 3
Photos of our group model [Villa Muller]

























